60′ by 80′ Pole Tent for a 194 Guest Wedding

60' by 80' Pole Tent for 194 Guests

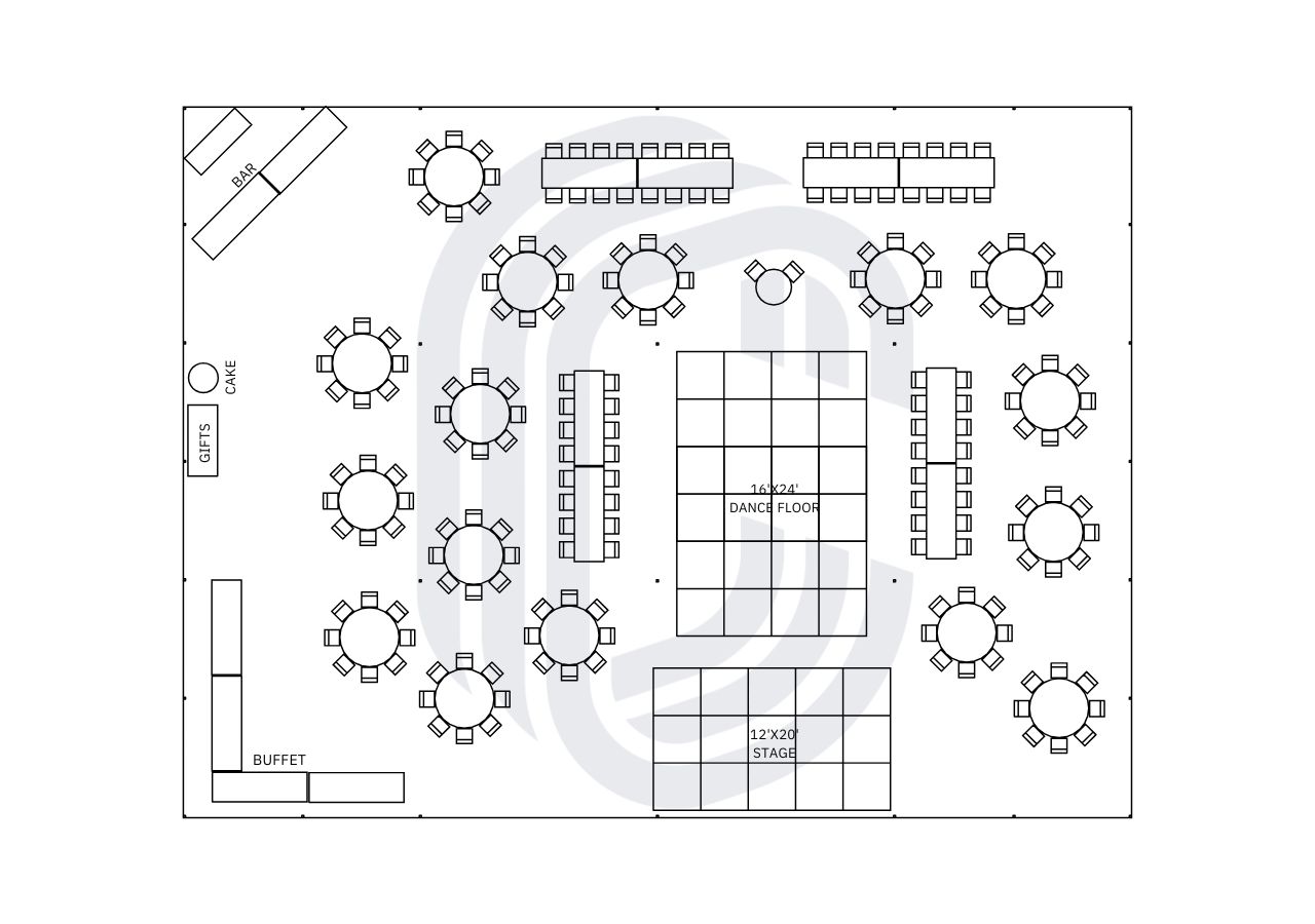
This 60′ by 80′ Tent wedding layout shows seating for up to 194 guests, seating at a mix of long banquet and round tables. In addition, this sample wedding tent layout has ample space for a spacious dance floor, band stage, buffet tables, large bar area, cake, and gift tables.

QuantityRental Items
160′ by 80′ Pole Tent
112′ by 20′ Band Stage
116′ by 24′ Dance Floor
236″ Round Tables
1660″ Round Tables
148′ Banquet Tables
26′ Banquet Tables
194Chairs

Welcome to Collective Event Group

With over 55 years of rental experience, Collective Event Group’s quality, selection and expert personalized approach sets us apart. We are the mid-atlantic’s most experienced rental company with the most locations and inventory available for any occasion!

Sailcloth Tent Wedding boho chic

With four showrooms to see our inventory in person, as well as see creative ideas and tablescape samples for your next event, we can't wait to work with you!

Need Help Planning Your Layout?

From backyard parties and graduations to weddings and corporate gatherings–our team is here to help you find the perfect setup. Just tell us a bit about your event, and we'll send you a custom quote with layout options, pricing, and expert recommendations.

You Might Also Like...

40′ by 40′ Tent Layout for 100-Guest Cocktail Party

40′ by 40′ Tent Layout for 100-Guest Cocktail Party

45′ by 84′ Sailcloth Tent Layout for a 200 Guest Cocktail Party

45′ by 84′ Sailcloth Tent Layout for a 200 Guest Cocktail Party

40′ by 100′ Pole Tent for 152 Guests

40′ by 100′ Pole Tent for 152 Guests

30′ by 30′ Pole Tent for 72 Guests

30′ by 30′ Pole Tent for 72 Guests

45′ by 64′ Sailcloth Tent Layout for a 115 Guest Wedding

45′ by 64′ Sailcloth Tent Layout for a 115 Guest Wedding

30′ by 60′ Pole Tent for 128 Guests

30′ by 60′ Pole Tent for 128 Guests

40′ by 60′ Pole Tent for 104 Guests

40′ by 60′ Pole Tent for 104 Guests

45′ by 124′ Sailcloth for 240 Guests

45′ by 124′ Sailcloth for 240 Guests

No results found.